Apartamento Alfonso Bovero

Este apartamento está situado em um simpático edifício na Rua Alfonso Bovero: um prédio de 5 andares, revestido de pastilhas celestes e rosas, de um lado alinhado com a calçada e do outro, com uma vista exuberante propiciada pelo terreno em declive voltado para o vale do Córrego Sumaré.

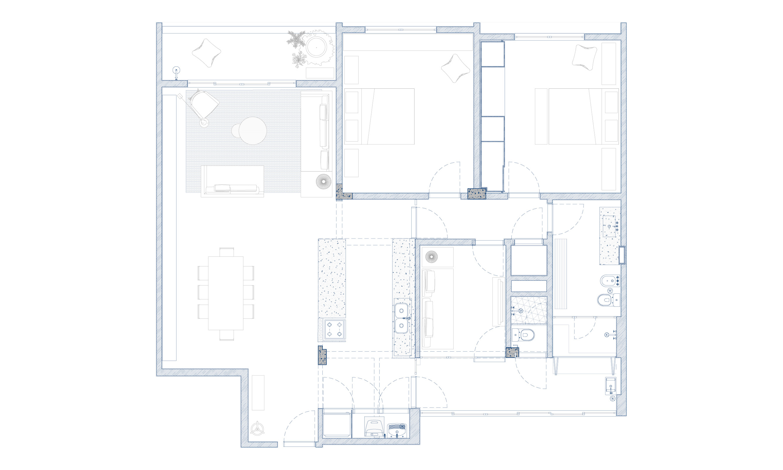
A intervenção proposta se voltou principalmente para a área da cozinha e da área de serviço: a cozinha escura foi conectada com a sala e a área de serviço compactada ao mínimo de forma que o antigo e generoso espaço agora pode ser utilizado como uma segunda varanda interna do apartamento. As generosas dimensões dos quartos principais foram mantidas, assim como o amplo banheiro, mantendo a generosidade da área íntima original do apartamento.

Novas esquadrias foram pensadas para iluminar o banheiro principal e o escritório localizados no centro da planta do apartamento, antes pouco iluminados, além de permitir a conexão franca destes espaços para o ambiente da antiga lavanderia. Duas tipologias foram pensadas, uma em aço e vidro que faz a interface entre os ambientes íntimos e os sociais e outra de madeira clara que fecha os quartos voltados para o corredor. No banheiro, aproveitando a área de chuveiro generosa, foi implantada uma sauna úmida, trazendo um ar de casa e descontração para o apartamento.

Poucos revestimentos fazem parte da intervenção: na cozinha e varanda secundária utilizamos um ladrilho hidráulico rosa que marca um rodapé alto nas paredes; no banheiro e varanda principal utilizamos o granilite no mesmo tom daquele encontrado nos corredores do próprio edifício. No restante do apartamento um piso claro de madeira Tauari faz jogo com as portas das áreas íntimas trazendo claridade e aconchego ao conjunto.

autores: guido otero arquitetura
programa: residencial
status: construído
endereço: perdizes são paulo, sp
área: 130m²
obra civil: engeark
fotos: camila alba

Este site usa cookies para fornecer a funcionalidade necessária do site, melhorar sua experiência e analisar nosso tráfego. Saiba mais.