Apartamento Morgado de Mateus

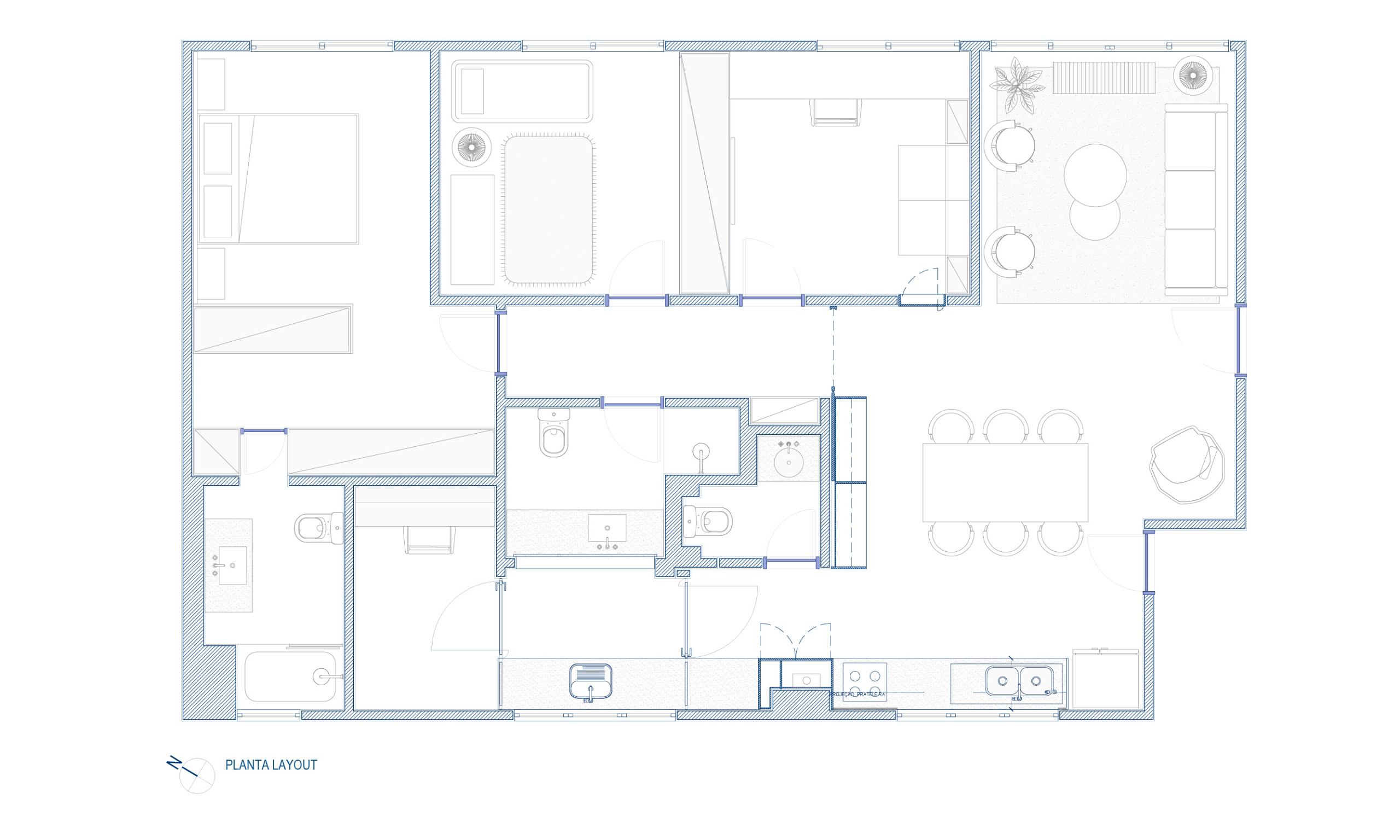
Este apartamento de três dormitórios, localizado na Vila Mariana, passou por uma reforma que teve como principal objetivo revelar qualidades espaciais encobertas por uma planta excessivamente compartimentada. Apesar de voltado para os recuos laterais do edifício — sem grandes vistas a explorar — o imóvel se destacava por receber ventilação cruzada e luz natural em duas fachadas. A intervenção partiu justamente da valorização desse potencial.

A principal transformação consistiu na integração entre sala e cozinha, substituindo os ambientes fechados da planta original por um espaço amplo, contínuo e iluminado. A nova configuração permite que a luz da manhã, vinda dos dormitórios, e a luz da tarde, pelas áreas de serviço, atravessem os ambientes ao longo do dia.

A reorganização dos espaços também permitiu adaptar o antigo banheiro de serviço, pequeno e mal posicionado, em um lavabo social mais funcional e acessível.

Com foco na racionalização de custos, evitou-se reformar integralmente os banheiros. Foi aplicado um piso sem juntas sobre os antigos revestimentos cerâmicos, já desgastados, mas ainda funcionais. A paleta de cores foi utilizada para conferir identidade e certa tensão entre os diferentes ambientes.

O piso de madeira original das áreas secas foi mantido e apenas restaurado, reforçando o caráter econômico e sustentável da intervenção. O resultado é um apartamento mais integrado, luminoso e funcional — adaptado às exigências da vida contemporânea, sem recorrer a soluções radicais ou dispendiosas.

desenvolvido em parceria com gabriel cesar

status: construído
ano projeto: 2024
conclusão de obra: 2024
endereço: vila mariana, são paulo, sp
área: 115m²
obra civil: inove
fotos: camila alba

Este site usa cookies para fornecer a funcionalidade necessária do site, melhorar sua experiência e analisar nosso tráfego. Saiba mais.