Confeitaria Luiza Lafer

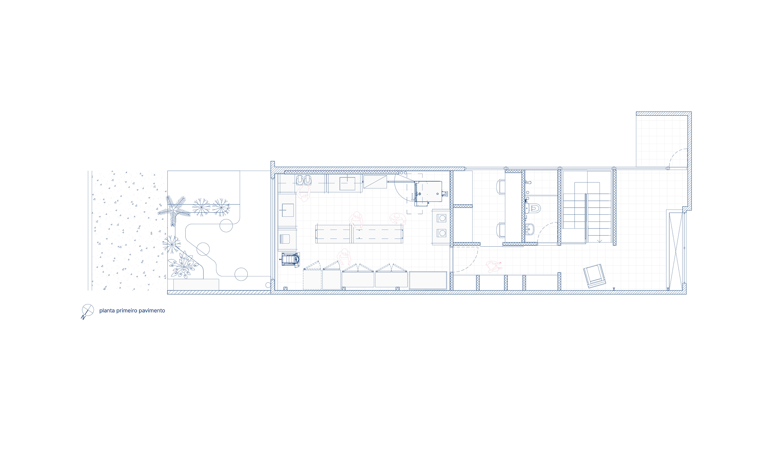
O presente projeto trata da adequação de um imóvel para abrigar a confeitaria Luiza Lafer, localizada em uma rua sem saída no bairro de Pinheiros, em São Paulo. A edificação existente não apresentava qualidades arquitetônicas relevantes, tendo perdido o caráter original dos sobrados típicos da região em razão de sucessivas reformas. Encontrou-se um espaço de planta retangular, com mezanino em estrutura metálica, iluminado pela fachada frontal e por um pátio posterior compartilhado com o imóvel vizinho.
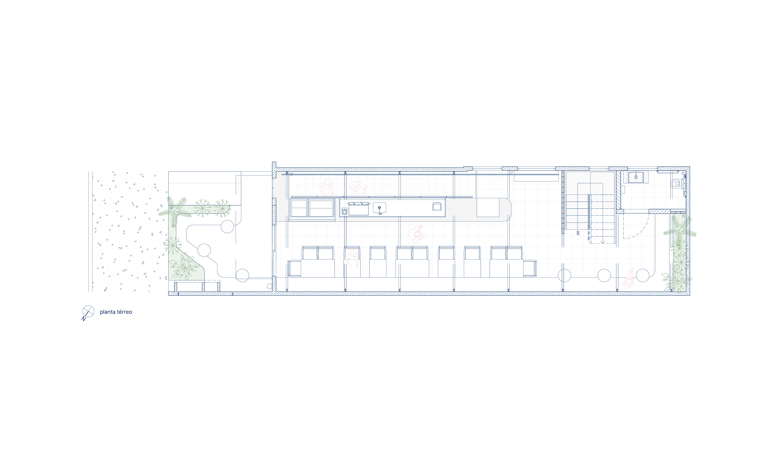
O desafio central do projeto foi acomodar uma generosa cozinha industrial no pavimento superior, junto às áreas de apoio, e criar no térreo um salão acolhedor e permeável ao olhar da rua, capaz de convidar o público para o interior do espaço. Para isso, o recuo frontal foi completamente reformulado: construiu-se uma rampa de acesso que garante a acessibilidade ao conjunto, uma janela de atendimento externo que permite a retirada ágil de encomendas, e um espaço voltado para o serviço junto à rua, reforçando a integração entre interior e exterior.
Ao entrar, o salão se organiza em um único ambiente. De um lado está o amplo balcão de atendimento, e do outro, as mesas se distribuem ao longo de um banco contínuo, que se estende desde o exterior até os fundos do imóvel, criando uma sensação de continuidade espacial. As janelas voltadas para o pátio compartilhado foram mantidas, garantindo iluminação e ventilação naturais ao interior do conjunto. Por outro lado a circulação vertical foi inteiramente redesenhada, permitindo melhor distribuição dos usos no pavimento superior

Os materiais utilizados na intervenção dialogam com aqueles empregados no início da década de 1990. O piso de ardósia existente foi preservado e combinado com pastilhas esmaltadas brancas com relevo, encontradas em um cemitério de azulejos. Tijolos de vidro e metais com brilho natural, como alumínio e aço galvanizado, contribuem para a construção da atmosfera pretendida. O conjunto é arrematado por um forro de gesso de bordas arredondadas, inspirado nos espaços comerciais do período que, ao ser pintado de branco, faz alusão aos merengues servidos na mesa. Por fim, buscando introduzir cor e vitalidade ao ambiente, os novos canteiros receberam espécies de intensa floração, muitas delas comestíveis ou utilizadas como temperos, reforçando o vínculo entre a arquitetura e o universo da culinária.

autores: guido otero arquitetura
colaboradores: gabriela azzolini, clara troia, nathalia pimenta, raphael fuly e henrique canan
programa: comercial
status: construído
ano projeto: 2024
conclusão de obra: 2025
endereço: pinheiros são paulo sp
área: 200m²
obra civil: daluth engenharia
reforço estrutural: bg engenharia
projeto de cozinha: interarq
fotos: camila alba

Este site usa cookies para fornecer a funcionalidade necessária do site, melhorar sua experiência e analisar nosso tráfego. Saiba mais.