Residência Itupeva

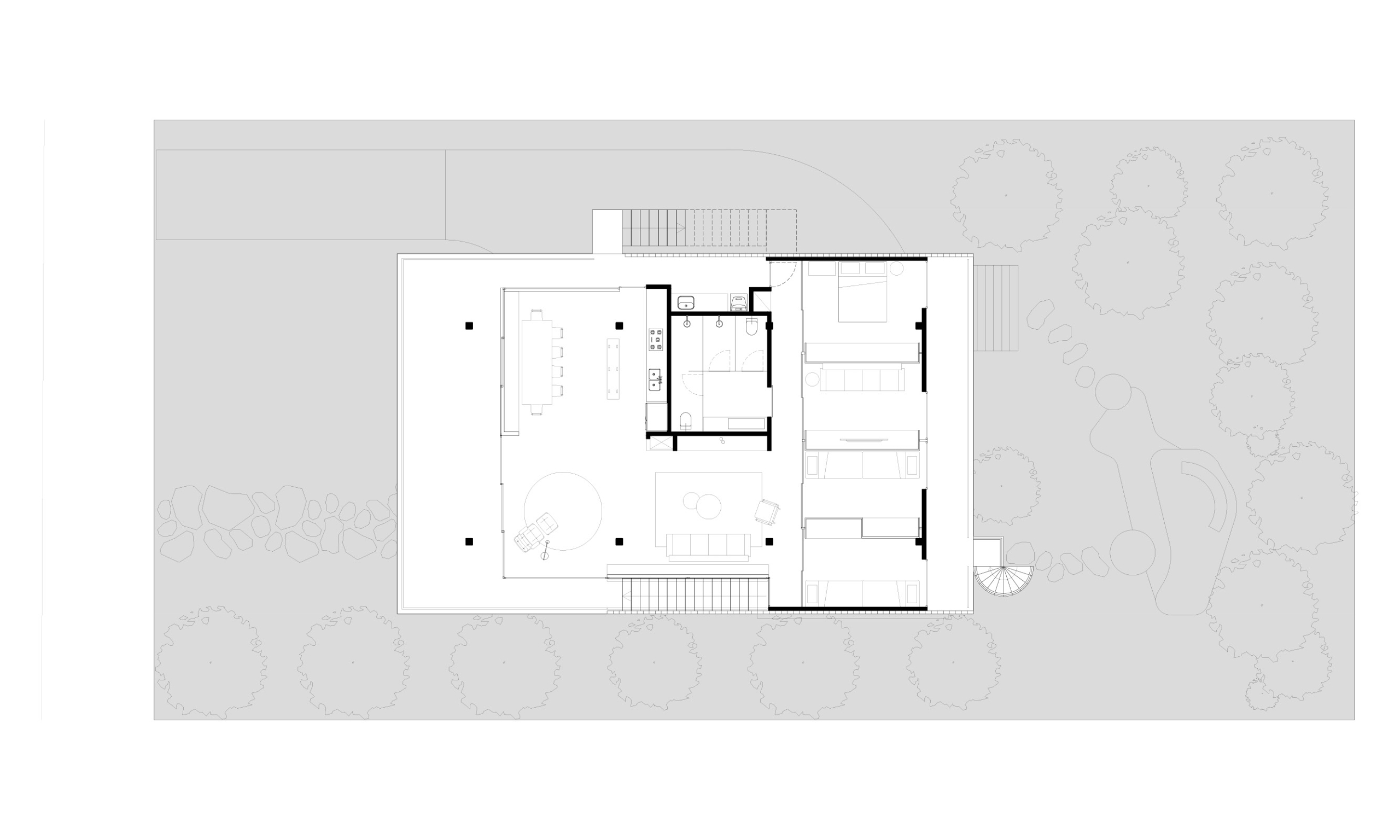
Esta residência trata-se de um projeto elaborado em plena pandemia do Covid-19 para um casal e seus filhos que buscam deslocar o seu cotidiano da metrópole de São Paulo para o interior Paulista. O programa de necessidades trata de uma casa relativamente compacta em franca relação com o ambiente externo, aproveitando os benefícios de uma residência localizada em uma região menos adensada com maior presença de área verde. Procurava-se uma residência prática e funcional, com espaços amplos com baixa manutenção, acomodando um espaço de estar integrado com a cozinha, os quartos e os banheiros.

O resultado é uma edificação simples e direta, que tira proveito tectônico dos diferentes elementos construtivos sem demasiadas engenharias, nem materiais luxuosos. Nesta residência térrea elevada as varandas além de sombrearem o corpo fechado do edifício servem como extensão da área interna para o exterior e como elemento articulador entre os diferentes níveis.

O partido do projeto buscou de início construir uma casa térrea elevada sobre pilotis, de tal forma que o impacto no terreno fosse mínimo, justamente para ressaltar as qualidades naturais do meio. Sob esta casa térrea elevada foram apenas implantadas a garagem e um pequeno módulo de serviços (com depósito e banheiro), quase sem paredes e em contato direto com o ambiente externo. A área pavimentada aqui foi reduzida ao mínimo denominador possível para acomodar apenas a garagem e sua área de manobra, deixando o resto do terreno permeável e ajardinado e consequentemente diminuindo o impacto da edificação no terreno natural.

Se o térreo foi pensado como espaço para o contato direto com o solo e a vegetação, sobre a casa térrea elevada foi implantada um amplo terraço descoberto, que permite o usufruto da vista e do sol de forma plena e desimpedida. Desta forma esta residência se divide em 3 momentos: a chegada no nível térreo, ambiente mais próximo do solo e da vegetação, a residência térrea elevada e a cobertura, em contato pleno com o céu.

Os diferentes momentos desta residência são articulados por meio de escadas e varandas que outorgam complexidade à volumetria simples e direta do corpo principal do edifício. Para proteger a residência do sol intenso do interior paulista, os ambientes internos foram recuados da face das lajes de forma a construir varandas cobertas que permitem que a casa se abra em dias de sol e chuva e o ambiente interno seja expandido para o exterior. A residência conta com uma sala integrada de forma ampla com a cozinha, quatro quartos e um banheiro coletivo, de forma que esta residência foi pensada buscando minimizar os excessos e o gasto desnecessário de materiais.

A estrutura da casa e os materiais de revestimento seguem o mesmo princípio buscando economia de energia e uma construção que dispensa engenharias sofisticadas e gastos desnecessários. Pensada em estrutura de concreto aparente moldado em loco, esta residência se vale de uma técnica amplamente difundida no Brasil e possível de ser executada com mão de obra local. Os materiais de revestimento seguem o mesmo princípio, evitando o máximo possível fachadas cegas e permitindo que a luz e a ventilação natural atravessem a edificação. Envolvendo o edifício e sombreando as fachadas leste e oeste, foram instalados elementos vazados cerâmicos que sombreiam o interior da residência nos horários nos quais o sol está mais baixo.

Desenvolvido em parceria com Ricardo Gusmão Arquitetos.

colaboradores: beatriz dias (coordenadora), clara troia, tomas vannucchi, victoria afonso
programa: residencial
status: construído
ano projeto: 2020-2021
conclusão de obra: 2022
endereço: itupeva, sp
área: 340m²
estrutura: wxyz projetos estruturais
instalações: ramoska & castellani
fotos: manuel sá

Este site usa cookies para fornecer a funcionalidade necessária do site, melhorar sua experiência e analisar nosso tráfego. Saiba mais.