Residência Descalvado

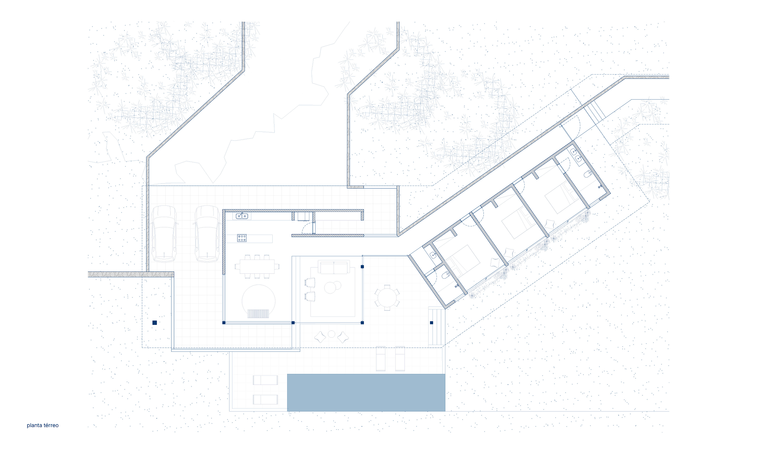
Localizada no interior paulista, em um terreno em declive, esta casa térrea usufrui da vista desimpedida para a paisagem ao acomodar seu desenvolvimento em uma mesma cota de nível que faz uma inflexão no terreno. Buscamos assim criar uma relação direta com o chão e o entorno: a sala foi ainda dividida em dois platôs para evitar muros excessivamente altos de contenção de terra, na parte superior a cozinha e a sala de jantar, na parte inferior o estar. Este último, com pé direito mais alto, se articula a uma varanda coberta em relação franca com a piscina e a paisagem. O acesso se dá por meio de uma passagem resguardada por muros de contenção, reforçando a importância destas paredes de pedra encontradas na região e de interesse do cliente.

autor: guido otero arquitetura
colaboradores: Clara Troia (coordenadora), Ewerton Oliveira e Raphael Fuly.
programa: residencial
status: estudo preliminar
ano projeto: 2024
endereço: descalvado, sp
área: 680m²

Este site usa cookies para fornecer a funcionalidade necessária do site, melhorar sua experiência e analisar nosso tráfego. Saiba mais.