Concurso Museu Marítimo

Novo Museu Marítimo do Brasil: um encontro entre geografia e história

A criação do Novo Museu Marítimo do Brasil insere-se no recente processo de reconexão do centro histórico do Rio de Janeiro com o mar, impulsionado pela demolição do Elevado da Perimetral e pela requalificação da orla. Nesse contexto, o museu reforça a relação fundadora entre cidade e água, articulando aspectos históricos, culturais e geográficos da experiência marítima brasileira. Mais do que um espaço expositivo, o equipamento propõe-se como lugar de encontro, troca e reflexão, integrando-se ao conjunto de instituições culturais do entorno e afirmando-se como novo marco na paisagem da Baía de Guanabara.

Implantado entre o centro histórico e a baía, no epicentro da antiga área portuária, o museu ocupa um conjunto singular formado por duas áreas complementares: uma situada sobre o solo da Orla do Conde, incorporada à cidade após a demolição da Perimetral, e outra sobre o antigo molhe do século XIX, vinculado às atividades da Alfândega Brasileira. Essa condição permite que o projeto se configure como um atracadouro protegido, ao final da Avenida Presidente Vargas e em frente à Igreja da Candelária, articulando cidade, água e patrimônio histórico.

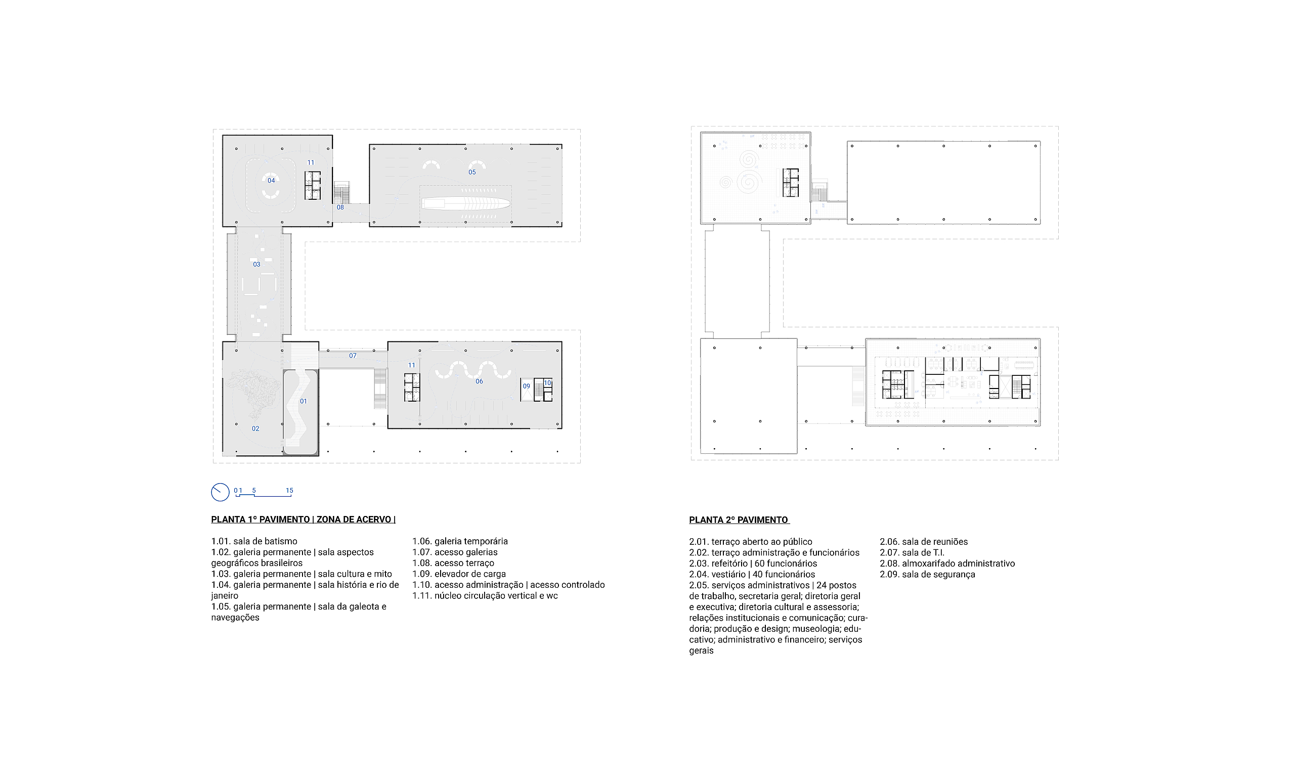
O pavimento térreo abriga os programas públicos não expositivos, organizados segundo sua relação com a cidade e o mar. Voltados para a orla, localizam-se o hall de entrada e os espaços de maior fluxo, enquanto sobre o molhe concentram-se os usos que demandam maior resguardo e se beneficiam da paisagem marítima. As áreas expositivas fechadas ocupam o pavimento superior, protegidas do agito urbano, conformando um volume contínuo que se dobra sobre o conjunto existente. Essa estratégia resulta em um museu em forma de “C”, com duas alas conectadas por uma ampla sala-ponte sobre a água, estabelecendo uma travessia expográfica entre a cidade e o píer histórico.

A implantação preserva grande parte do píer livre de edificações, permitindo a atracação de embarcações, a exibição de peças de grande porte ao ar livre e a incorporação de novos usos no futuro. A edificação principal se concentra junto aos edifícios da Capitania dos Portos, estabelecendo diálogo morfológico e programático com as preexistências e liberando áreas abertas para exposições externas. O conjunto conforma uma praça d’água interna voltada para o mar, organizando visual e espacialmente o museu e reforçando a relação com o horizonte da baía.

Duas grandes coberturas estruturam o projeto. A principal, sobre as áreas climatizadas, utiliza telhas metálicas termoacústicas com amplos beirais, favorecendo o sombreamento, a ventilação natural e a redução do consumo energético, além de abrigar painéis fotovoltaicos. Sobre o píer, uma cobertura leve e tensionada protege as exposições externas da insolação e das chuvas, mantendo as visuais livres e permitindo ampliações futuras. O programa se completa com auditório, espaços educativos, café, loja, restaurante, áreas administrativas e salas expositivas permanentes e temporárias, resultando em um museu aberto à cidade e ao mar, capaz de acolher a diversidade do acervo marítimo brasileiro e promover uma experiência cultural integrada e contemporânea.

Desenvolvido em parceria com Ricardo Gusmão Arquitetos.

colaboradores: beatriz dias, clara troia, gabriela madeira, luisa teperman, tomas vannucchi e victoria afonso
programa: cultural
ano do concurso: 2021
endereço: rio de janeiro rj
estrutura: wxyz engenharia
instalações: corelo chaves
climatização: nbr projetos
expografia e cenografia: stella tennenbaum
sustentabilidade: matheus tonellis
cozinha: erlise tancredi
comunicação visual: coletivo oitentaedois
renders: bhakta kpra

Este site usa cookies para fornecer a funcionalidade necessária do site, melhorar sua experiência e analisar nosso tráfego. Saiba mais.