Restaurante Cais

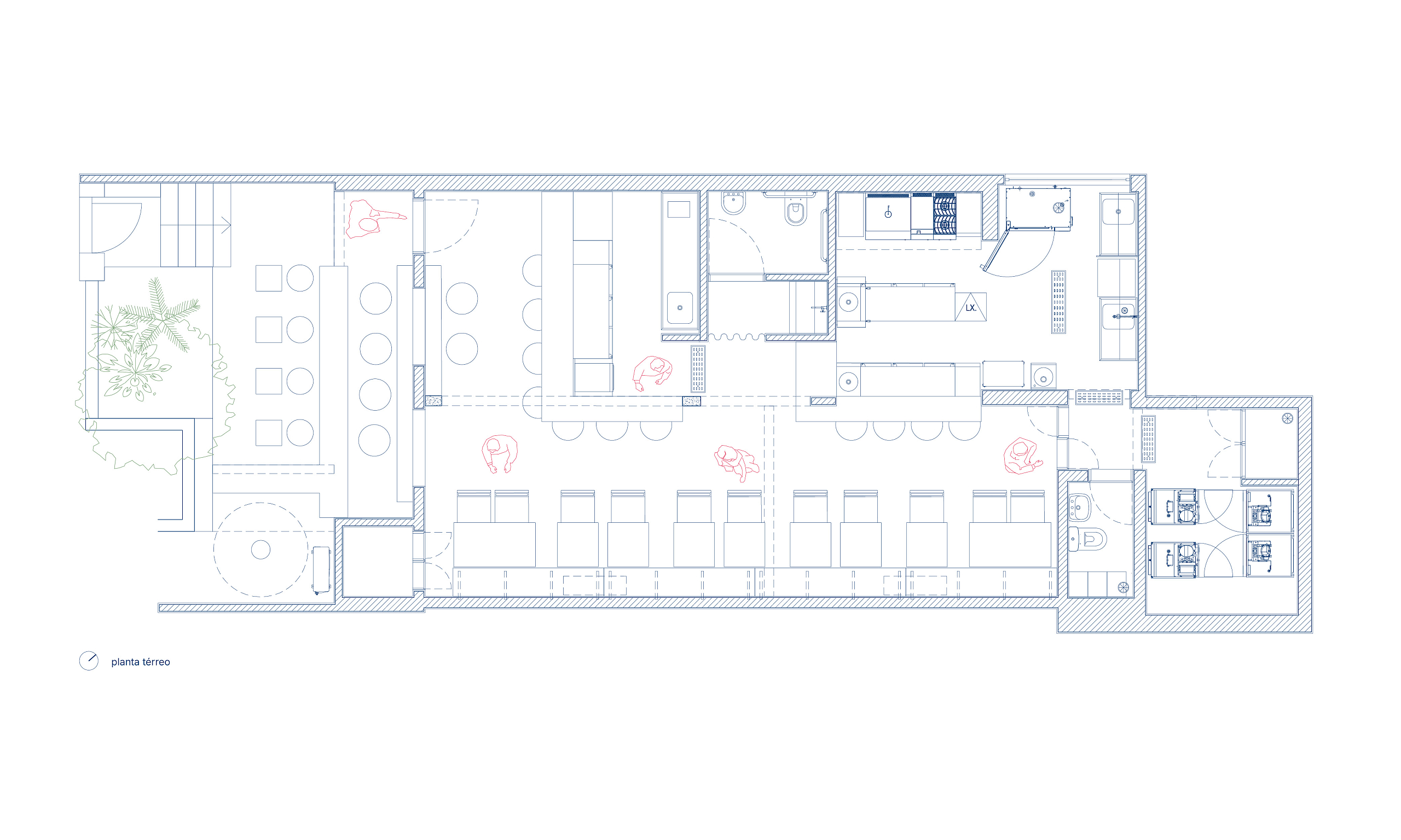
No projeto para o restaurante Cais, localizado no térreo de um típico sobrado da Vila Madalena, buscamos trazer o trabalho autoral e delicado dos pratos servidos na mesa para o espaço. Com simplicidade e elegância o projeto se vale de materiais rústicos, nos quais o trabalho manual se torna mais presente, para conceber um espaço ao mesmo tempo aconchegante e despojado. Além dos pequenos detalhes que nos fazem lembrar das orlas das cidades portuárias, pensamos num ambiente no qual as texturas dos materiais revelassem o passar do tempo, ressonando o desgaste que o mar causa nas superfícies.

Na frente do restaurante a copa de uma árvore frutífera e uma pequena varanda contribuem para criar esta transição entre a rua e o salão, que acomoda 35 lugares lembrando os pequenos bistrôs parisienses. Além da decoração e desenho do espaço um intenso trabalho oculto aos olhos renovou as infraestruturas do antigo sobrado, permitindo que o restaurante funcione de forma eficiente e duradoura. Junto com o belo e intenso trabalho em equipe cuidamos de cada detalhe tomando cuidado para fugir de excessos e permitir que o espaço seja um silencioso tempero dos pratos servidos no Cais.

Desenvolvido em parceria com Ricardo Gusmão Arquitetos.

colaboradores: beatriz dias e clara troia
localização: são paulo sp
Programa: comercial
ano projeto: 2019
ano obra: 2019
status: construído
área construída: 110m²
identidade visual: estúdio esse
produção mobiliário: guilherme pimenta
fotografia: pedro kok e bruno giraldi

Este site usa cookies para fornecer a funcionalidade necessária do site, melhorar sua experiência e analisar nosso tráfego. Saiba mais.