Edifício Maria Dulce

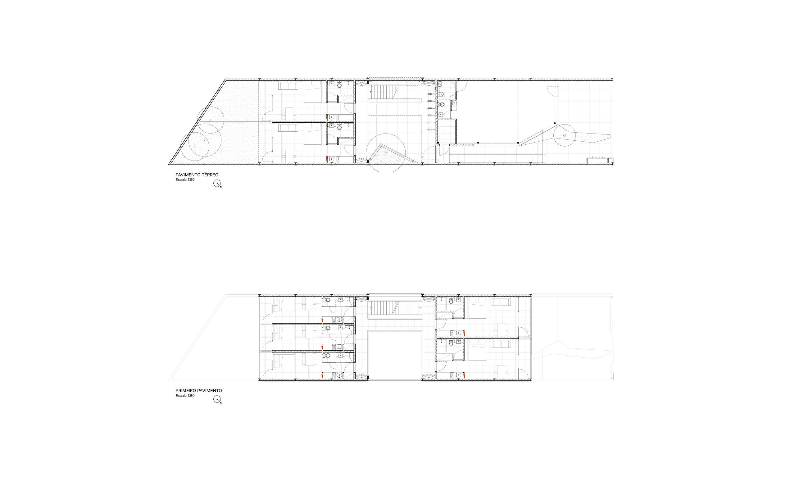
O edifício Maria Dulce é um projeto de uso misto, com um espaço para uso comercial no térreo de acesso independente e dois blocos habitacionais de dois pavimentos.

Com doze estúdios compactos, sendo 6 de 29,70m² e 6 menores, de 20,30m², o projeto possui um pátio central que ilumina, garante a ventilação cruzada das unidades e organiza a circulação vertical para os dois blocos de estúdios. A estrutura metálica segue uma modulação racional e é construída com apenas um tipo de pilar e um tipo de viga. Tal pragmatismo no viés construtivo deste projeto visa uma construção econômica, limpa e rápida.

Em contraste com a modulação dos blocos residenciais, o espaço comercial tem uma geometria irregular e se aproxima da rua para marcar sua diferença de uso.

Projeto desenvolvido em parceria com Ricardo Gusmão Arquitetura

colaboradores: Marina Novaes, Natalie Rachid
programa: habitacional, comercial
ano projeto: 2018
conclusão de obra: em andamento
endereço: pinheiros, são paulo, sp
área: 550m²

Este site usa cookies para fornecer a funcionalidade necessária do site, melhorar sua experiência e analisar nosso tráfego. Saiba mais.